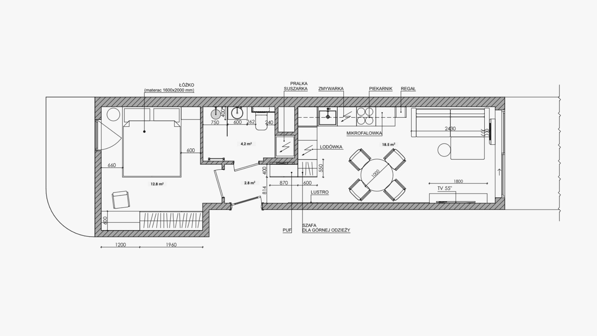
38.3 m²
2 rooms
Kraków, Grzegórzki, “NOHO Mogilska”
To mieszkanie to przykład świetnie zaprojektowanej przestrzeni, gdzie elegancki minimalizm spotyka się z funkcjonalnością. Stonowana kolorystyka, przemyślane rozwiązania i przytulna atmosfera sprawiają, że wnętrze idealnie odpowiada na potrzeby nowoczesnego użytkownika. Zlokalizowane w prestiżowym kompleksie NOHO Nadgórników 14, jest doskonałą propozycją dla osób poszukujących bezpiecznej i gotowej inwestycji. Starannie wykończone pod klucz – idealne do natychmiastowego wynajmu lub odsprzedaży z zyskiem.
















