36.2 m²
1 room
Kraków, Grzegórzki, “NOHO Mogilska”
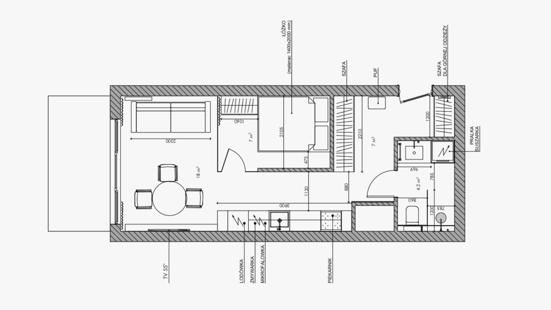
To stylowe studio z wydzieloną strefą sypialnianą to przykład mieszkania inwestycyjnego, które łączy wysoką estetykę z pełną funkcjonalnością. Jasna, spójna kolorystyka, dopracowane detale i nowoczesne wykończenie tworzą wnętrze, które przyciąga najemców od pierwszego spojrzenia. Zaprojektowane i zrealizowane pod klucz w inwestycji NOHO w Katowicach, stanowi gotowy produkt, który od razu zaczyna pracować na zwrot z inwestycji. To przestrzeń idealna dla osób szukających bezpiecznej lokaty kapitału w segmencie premium.













