+48 602 255 619
Add property
Report a search
en

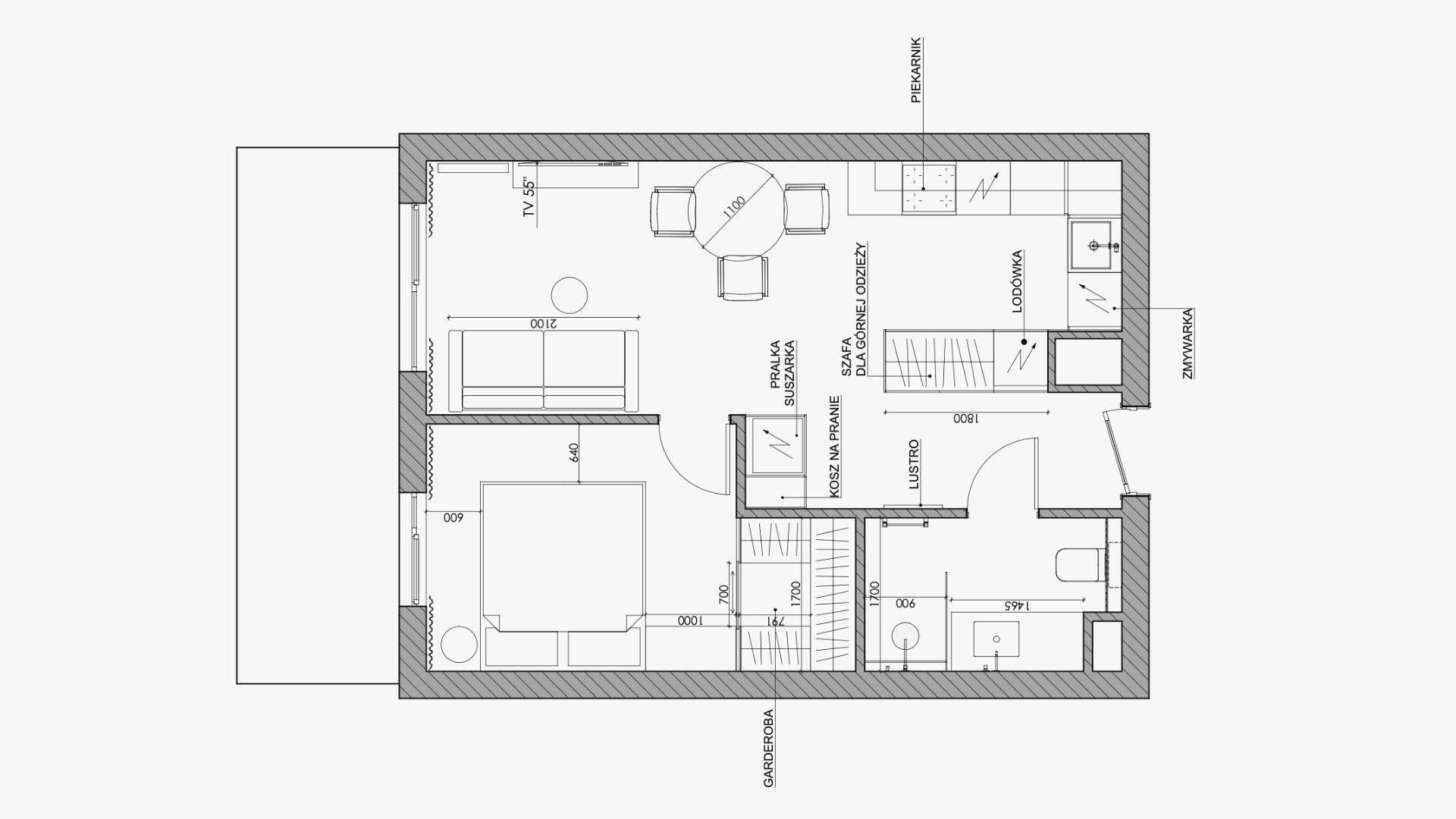
41.10 m²

2 rooms

Katowice, Bogucice, “Nadgórników 14”

 

Ten apartament to harmonijne połączenie ponadczasowego stylu i nowoczesności. Salon zachwyca ciepłą atmosferą, dzięki naturalnemu drewnu i subtelnej palecie barw, wzbogaconym czarnymi akcentami, które dodają wnętrzu charakteru. Minimalistyczna sofa i starannie dobrane detale podkreślają jego wyjątkowy urok. Łazienka łączy odcienie ziemi, designerskie lustro i funkcjonalną strefę prysznica, tworząc spójną, elegancką przestrzeń. Sypialnia z tapicerowanym łóżkiem w delikatnej zieleni, artystycznymi dodatkami i przestronną garderobą idealnie dopełnia całość, oferując komfort i wyrafinowanie.

CHECK WHY WE ARE UNIQUE

CONTACT US