82.5 m²
3 rooms
Kraków, Prądnik Biały, Prądnicka 64
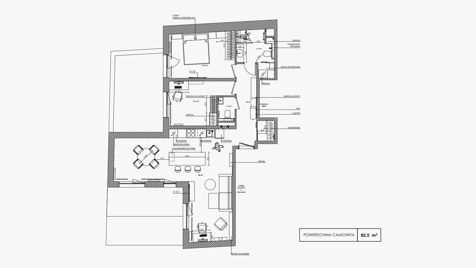
Mieszkanie zaprojektowano z myślą o nowoczesnym, komfortowym życiu w odrestaurowanej kamienicy. Wnętrze łączy elegancję naturalnych materiałów, stonowaną kolorystykę i funkcjonalne rozwiązania, które odpowiadają na potrzeby współczesnych mieszkańców. Centralną część stanowi przestronna strefa dzienna z dużymi przeszkleniami, wydzieloną częścią wypoczynkową i ergonomicznym miejscem do pracy. Kuchnia z monumentalną wyspą wykonana została w wysokim standardzie, tworząc idealne miejsce do wspólnego gotowania i spędzania czasu.
Główna sypialnia zapewnia prywatność i wygodę dzięki pełnej zabudowie stolarskiej oraz miękkiej, przytulnej aranżacji. Układ mieszkania uzupełniają funkcjonalna garderoba, duża łazienka oraz dodatkowe strefy przechowywania, które pozwalają utrzymać porządek bez rezygnowania z lekkości przestrzeni. Przemyślany projekt RS Design nadaje wnętrzu spójność i ponadczasowy charakter, idealnie wpisując się w klimat odnowionej kamienicy i podnosząc komfort codziennego użytkowania.


























