+48 602 255 619
Dodaj nieruchomość
Zgłoś poszukiwanie
pl
Lokal handlowo-usługowy | bez prowizji

Komercja na Sprzedaż

Głogów, Głogów, ul. Mechaniczna

Blok mieszkalny 142.26 m2 5
890 000 zł 6 256 zł / m2

Lokal handlowo-usługowy | bez prowizji

Rok budowy

2008

Opis

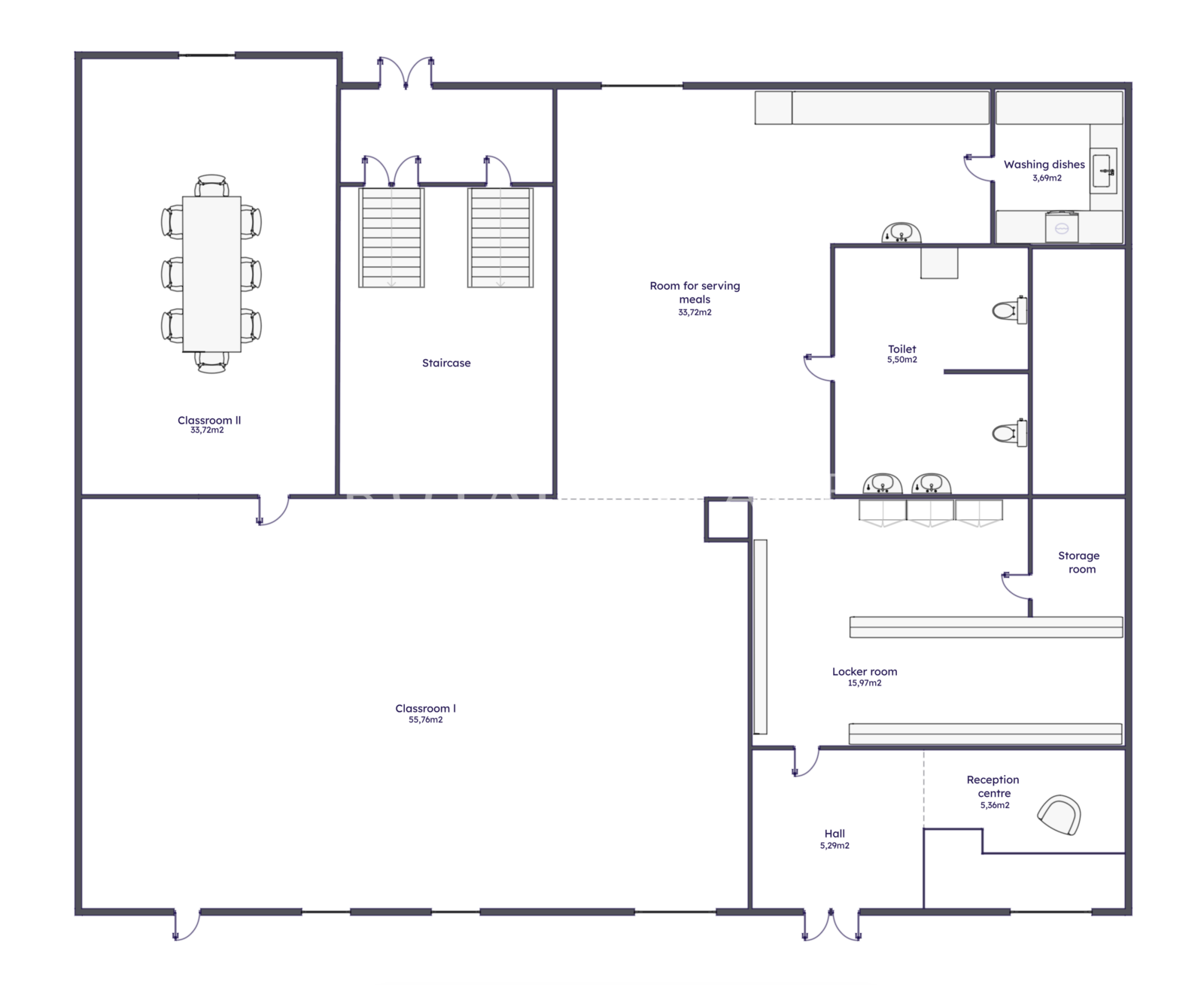
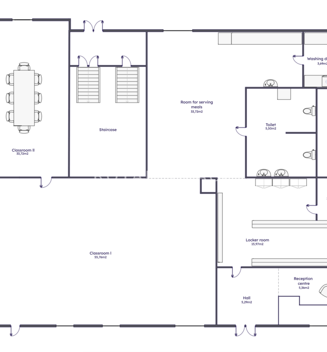
Royal Space ma przyjemność zaprezentować ofertę sprzedaży lokalu handlowo-usługowego na Osiedlu Złota Podkowa w Głogowie. 
 
LOKAL
Przedmiotem sprzedaży jest lokal handlowo-usługowy o powierzchni 142,26 m2 usytuowany na parterze budynku wielorodzinnego z lokalami usługowymi. Obecnie w lokalu prowadzona jest działalność oświatowa – prywatne przedszkole ze szkołą językową. Lokal obecnie zaadaptowany jest na potrzeby wcześniej wymienionej działalności. 

Na powierzchnię lokalu składają się:
• open space 1 (obecnie sala dydaktyczna) – 55,76m2,
• sala zajęć – 15,37m2
• open space 2 (obecnie aneks z jadalnią) – 33,72m2,
• pomieszczenie gospodarcze – 3,69m2,
• pomieszczenie (obecnie szatnia) – 15,97m2,
• toaleta – 5,5m2,
• korytarz – 10,65m2.
 
DODATKOWE INFORMACJE
 • lokal dostępny od 1 września,
 • możliwość parkowania przed budynkiem (dwa miejsca),
 • dobre doświetlenie, ekspozycja zachód-wschód,
 • ogrzewanie i ciepła woda z gazowego pieca dwufunkcyjnego,
 • dwa wejścia do lokalu,
 • lokal z witrynami. 

CENA – 890 000 PLN

Serdecznie zapraszamy do obejrzenia nieruchomości.
We speak English!

Kontakt do Brokera:

Szymon Przybyś
+48 728 486 184
szymon@royal-space.pl

ROYAL.SPACE

Zadaj pytanie

    Lokalizacja

    Chciałbyś dowiedzieć się więcej?

    Skontaktuj się z nami