+48 602 255 619
Dodaj nieruchomość
Zgłoś poszukiwanie
pl
Świetnie skomunikowana hala o wysokości 9m!
Świetnie skomunikowana hala o wysokości 9m!

Komercja na Wynajem

Kraków, Podgórze, ul. Biskupińska

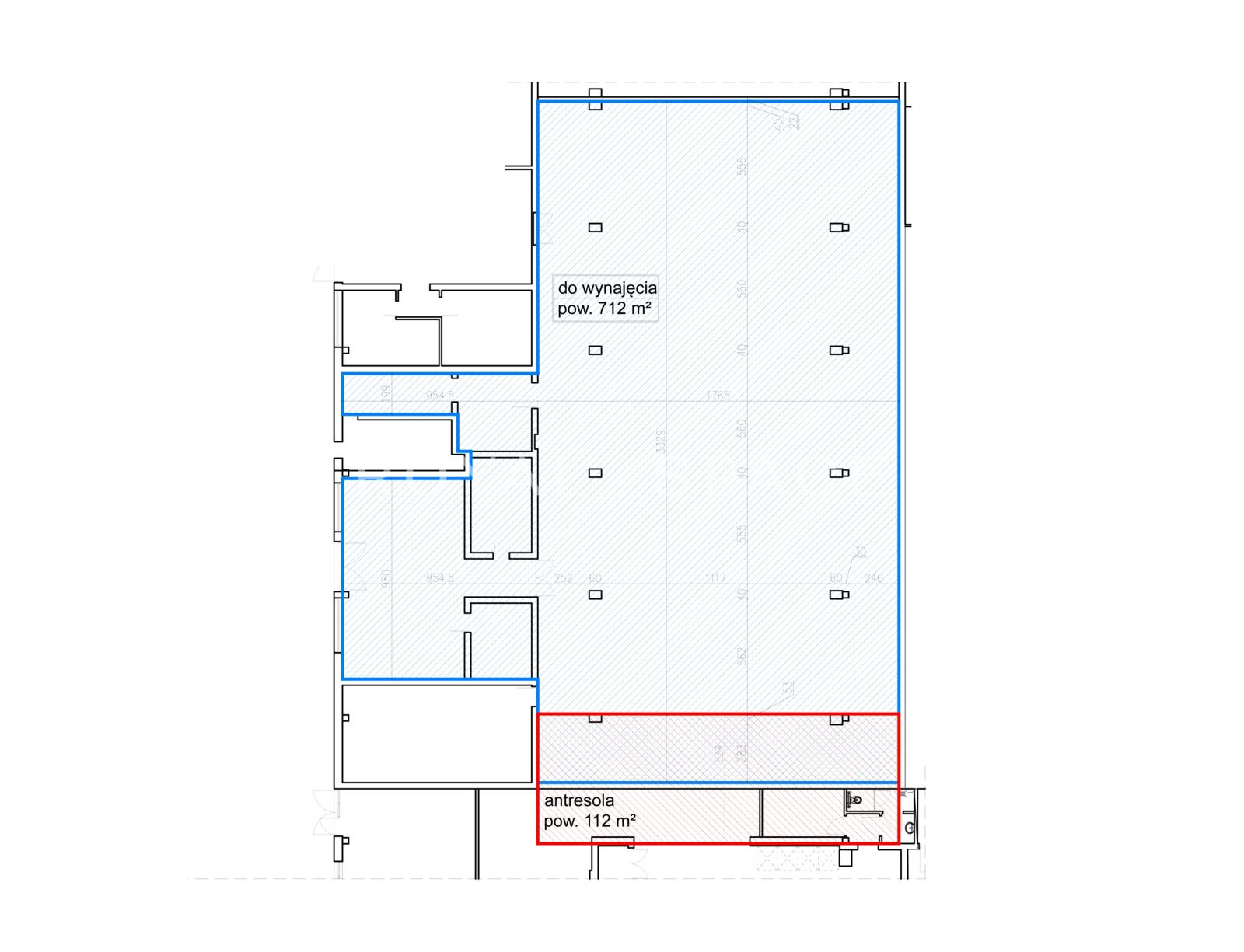
712 m2
24 920 zł 35 zł / m2

Świetnie skomunikowana hala o wysokości 9m!

Opis

Mamy przyjemność zaprezentować halę magazynową o pow. 712 m², zlokalizowaną przy ul. Biskupińskiej w Krakowie, w dzielnicy Podgórze.

LOKALIZACJA
Hala znajduje się w doskonale skomunikowanej lokalizacji, z bezpośrednim dostępem do głównych arterii komunikacyjnych Krakowa. Droga dojazdowa jest asfaltowa, zapewniając wygodny transport. Teren wokół obiektu jest monitorowany, a parking znajduje się w pobliżu budynku. Dzięki temu, hala idealnie nadaje się do celów magazynowych lub dystrybucyjnych. Oferuje również możliwość podziału przestrzeni, co czyni ją jeszcze bardziej elastyczną w zależności od potrzeb najemcy.

INWESTYCJA
Hala magazynowa w bardzo dobrym stanie technicznym, przestronna i dobrze oświetlona, zapewnia odpowiednią wysokość pomieszczeń (9 m), co umożliwia efektywne składowanie towarów na dużych wysokościach. Pomieszczenia posiadają odpowiednie instalacje elektryczne, co zwiększa funkcjonalność przestrzeni.

HALA
Hala oferuje 712 m² przestrzeni magazynowej, idealnej do różnorodnych celów. Wysokość pomieszczeń  daje możliwość efektywnego zagospodarowania przestrzeni. Dodatkowo, istnieje możliwość dołączenia antresoli o powierzchni 112 m², co zwiększa elastyczność przestrzeni i dostosowanie jej do specyficznych potrzeb najemcy.

DODATKOWE INFORMACJE
• dostęp 24/7
• ogólnodostępny parking
• monitoring, kontrola dostępu
• dogrzewanie z MPC
• możliwość podziału przestrzeni
• dostępne od zaraz.

CENA – 24 920 PLN

Serdecznie zapraszamy do obejrzenia hali oraz omówienia szczegółów wynajmu.
We speak English!

Zadaj pytanie

    Lokalizacja

    Chciałbyś dowiedzieć się więcej?

    Skontaktuj się z nami

      Podobne oferty