+48 602 255 619
Dodaj nieruchomość
Zgłoś poszukiwanie
pl

Oferta nieaktualna. Poszukujesz podobnej?

Skontaktuj się z nami
Biuro w wysokim standardzie na Zabłociu
Biuro w wysokim standardzie na Zabłociu
Biuro w wysokim standardzie na Zabłociu
Biuro w wysokim standardzie na Zabłociu
Biuro w wysokim standardzie na Zabłociu
Biuro w wysokim standardzie na Zabłociu
Biuro w wysokim standardzie na Zabłociu
Biuro w wysokim standardzie na Zabłociu
Biuro w wysokim standardzie na Zabłociu
Biuro w wysokim standardzie na Zabłociu
Biuro w wysokim standardzie na Zabłociu

Komercja na Wynajem

Kraków, Zabłocie, ul. Ślusarska

Apartamentowiec 106 m2 2018
10 000 zł 94 zł / m2

Biuro w wysokim standardzie na Zabłociu

Alarm

Tak

Winda

Tak

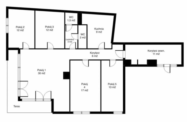
Opis

Mamy przyjemność zaprezentować ofertę wynajmu wyjątkowego lokalu biurowego o powierzchni 106 m², zlokalizowanego przy ul. Ślusarskiej 6 w inwestycji Zabłocie Concept.

LOKALIZACJA
Zabłocie to jedna z najbardziej dynamicznie rozwijających się dzielnic Krakowa, doskonale skomunikowana z centrum miasta i pozostałymi częściami Krakowa. W pobliżu znajduje się stacja kolejowa Kraków-Zabłocie, 10 linii tramwajowych oraz 5 autobusowych.

Dodatkowym atutem jest bliskość terenów rekreacyjnych (bulwary wiślane), kulturalnych (MOCAK, Fabryka Schindlera) oraz historycznych (Kazimierz). Okolica oferuje bogatą infrastrukturę gastronomiczną – liczne restauracje, piekarnie, kawiarnie i winiarnie, w tym pierwszy krakowski food hall – Hala Lipowa. W inwestycji zastosowano nowoczesne rozwiązania techniczne: klimatyzację, światłowód, kontrolę dostępu, monitoring, system alarmowy, czujniki dymu oraz ochronę.

LOKAL
Znajduje się  na 2 piętrze i składa się z:

  • 5 pokoi,
  • 2 toalet
  • kuchni/pomieszczenia socjalnego
  • dużego balkonu

DODATKOWE INFORMACJE

  • nowoczesne wykończenie
  • ekspozycja północno-zachodnia
  • miejskie ogrzewanie i ciepła woda,
  • klimatyzacja we wszystkich pomieszczeniach
  • minimalny okres najmu: 12 miesięcy,
  • miejsce parkingowe w garażu podziemnym
  • dostępność: od zaraz

CENA – 10 000 PLN netto + VAT

  • 1 000 PLN opłata eksploatacyjna
  • media (prąd, ogrzewanie)
  • Kaucja: 10 000 PLN

Serdecznie zapraszamy do obejrzenia nieruchomości.
Мы также говорим на русском!
We speak English!

Zadaj pytanie

    Film

    Lokalizacja

    Chciałbyś dowiedzieć się więcej?

    Skontaktuj się z nami

      Podobne oferty